류샘 입니다.
루틴은 매일 꾸준히 실천하는 것이 가장 바람직합니다.
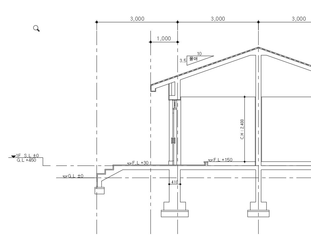
기초 구조와 일체식 슬라브의 연결 원리를 이해하고, 반복 작업을 통해 완성도를 높일 수 있습니다.
결국, 좋은 CAD 습관이 좋은 결과를 만들어냅니다.

.

'26_매일 반복 루틴 훈련하기' 카테고리의 다른 글
| 25_Routine_01_매일 타자연습 재료 외우기 (0) | 2025.07.22 |
|---|---|
| 25_Routine_02_매일 연습해야하는 도각및 기초환경설정 (0) | 2025.07.22 |
류샘 입니다.
루틴은 매일 꾸준히 실천하는 것이 가장 바람직합니다.
기초 구조와 일체식 슬라브의 연결 원리를 이해하고, 반복 작업을 통해 완성도를 높일 수 있습니다.
결국, 좋은 CAD 습관이 좋은 결과를 만들어냅니다.

.

| 25_Routine_01_매일 타자연습 재료 외우기 (0) | 2025.07.22 |
|---|---|
| 25_Routine_02_매일 연습해야하는 도각및 기초환경설정 (0) | 2025.07.22 |