본문 바로가기
25 26전산응용건축제도기능사/20_단면도_입면도_치수기입_도면타이틀_레이아웃배치 작성의 이해

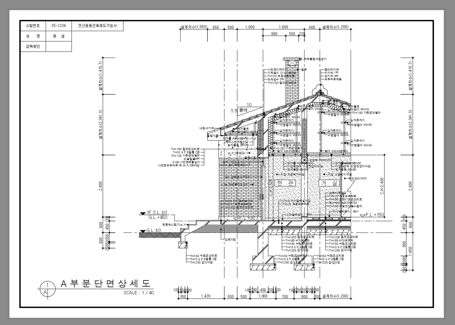
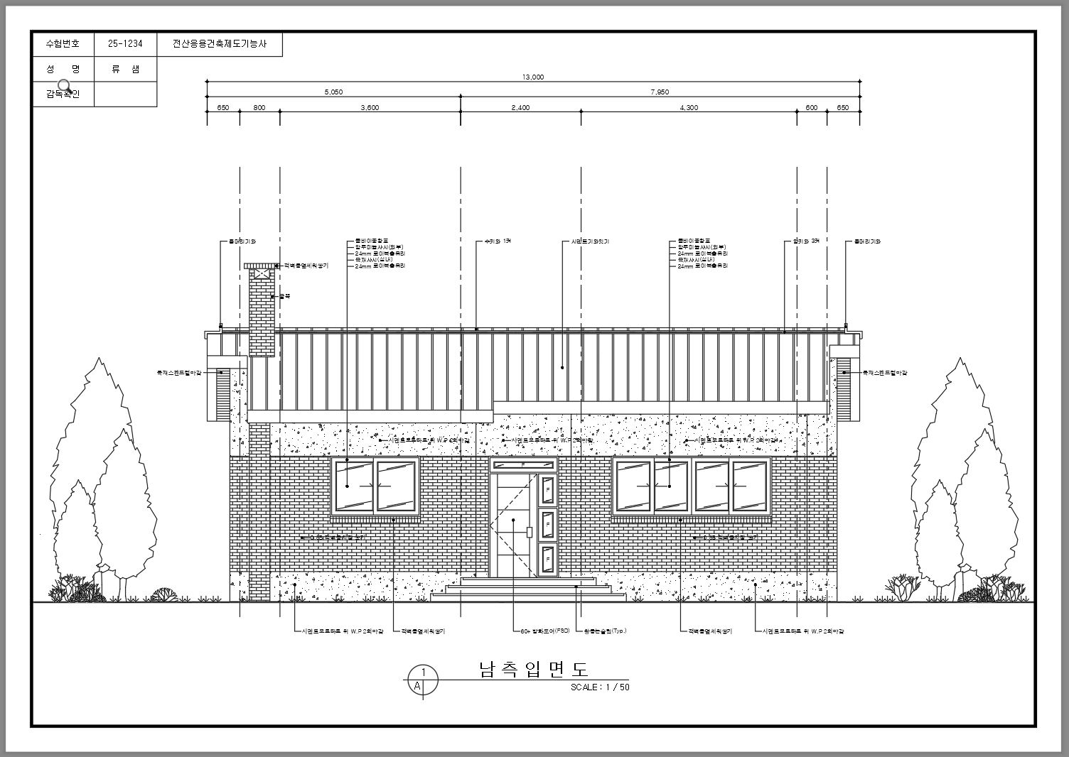
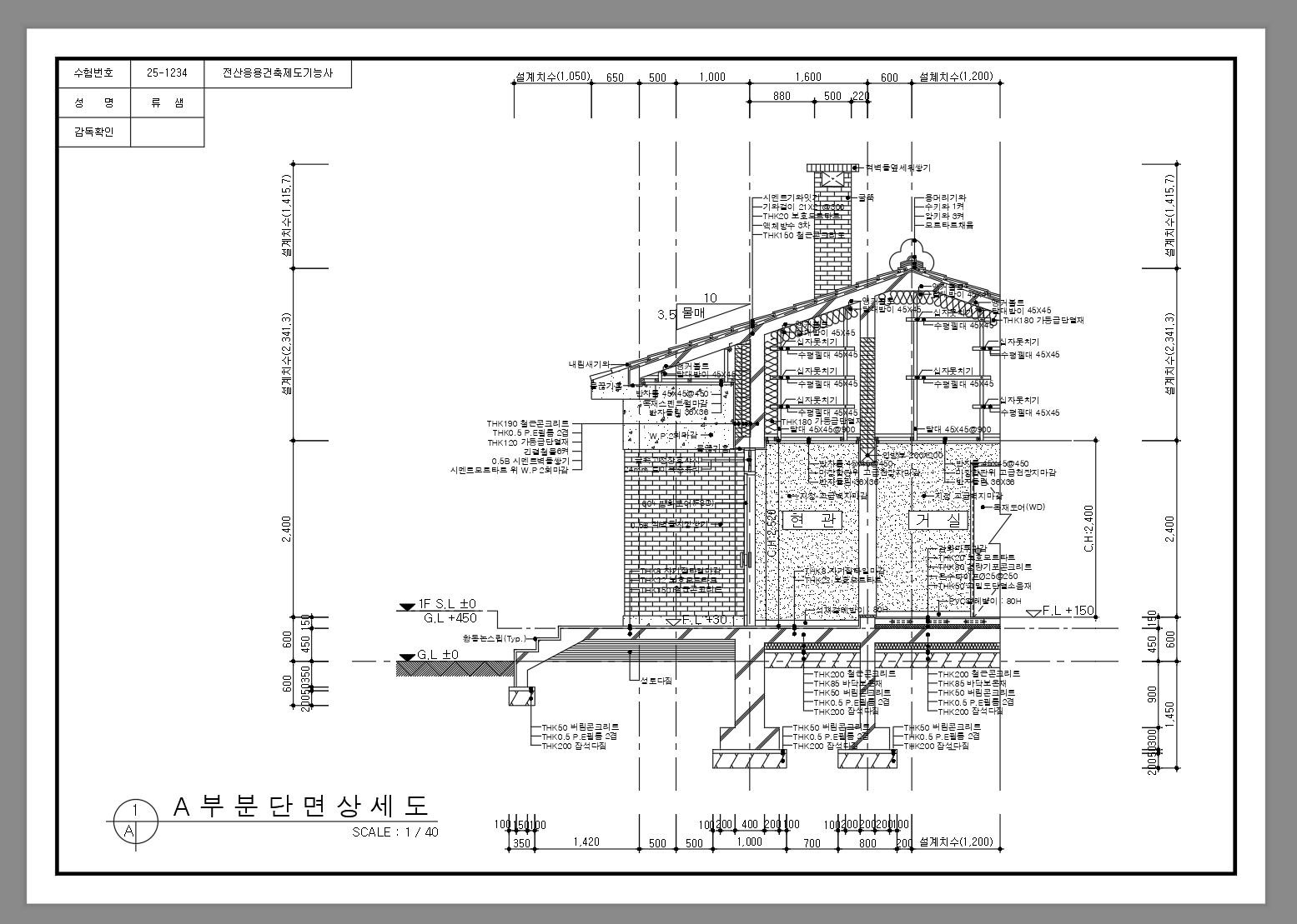
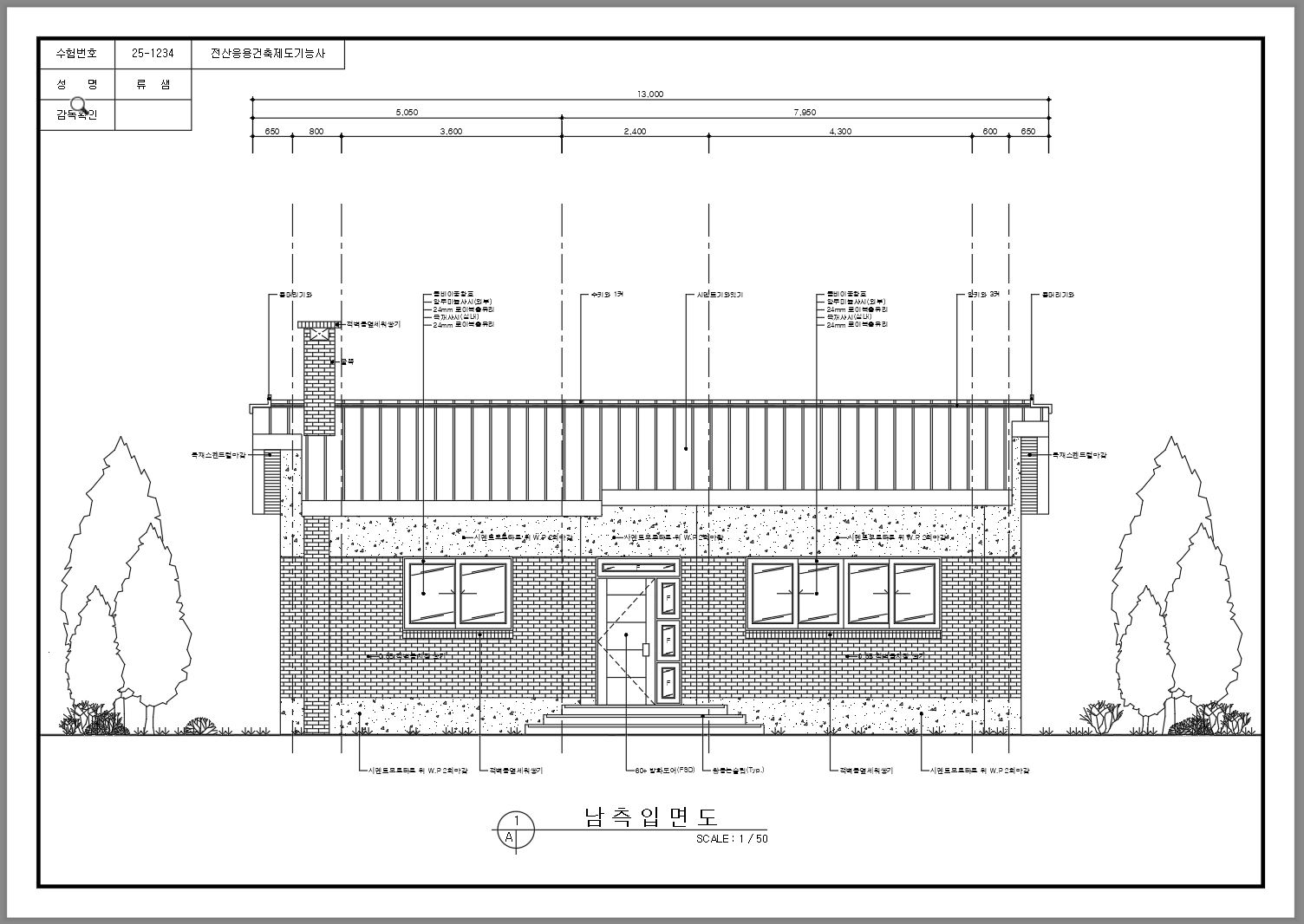
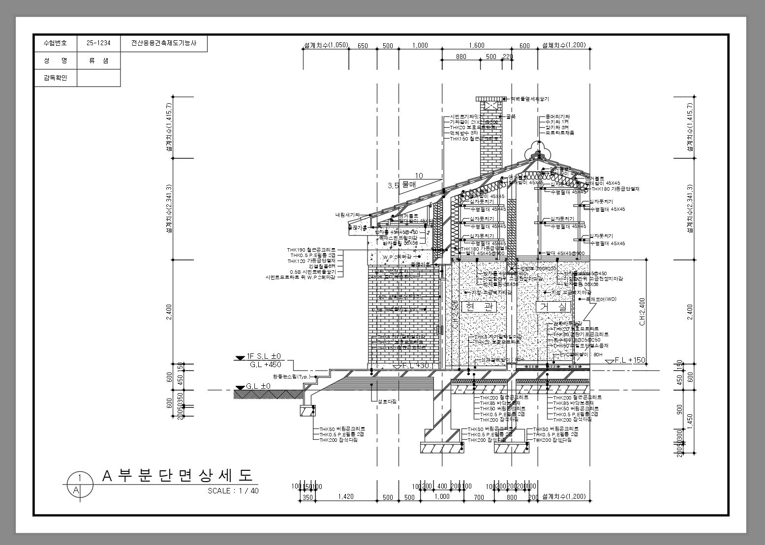
25_20_단면도_입면도_치수기입_ 도면타이틀_ 레이아웃 배치 작성의 이해

by 메이슨류 2025. 7. 5.

25_20_단면도_입면도_치수기입_도면타이틀_ 레이아웃 배치 작성의 이해

 

도면타이틀 작성하기

 

 

 

 

 

 

 

 

단면도 입면도 최종 완성왼 파일

0820_전산건축_단면도_입면도_배치레이아웃_완료.dwg
0.28MB