본문 바로가기
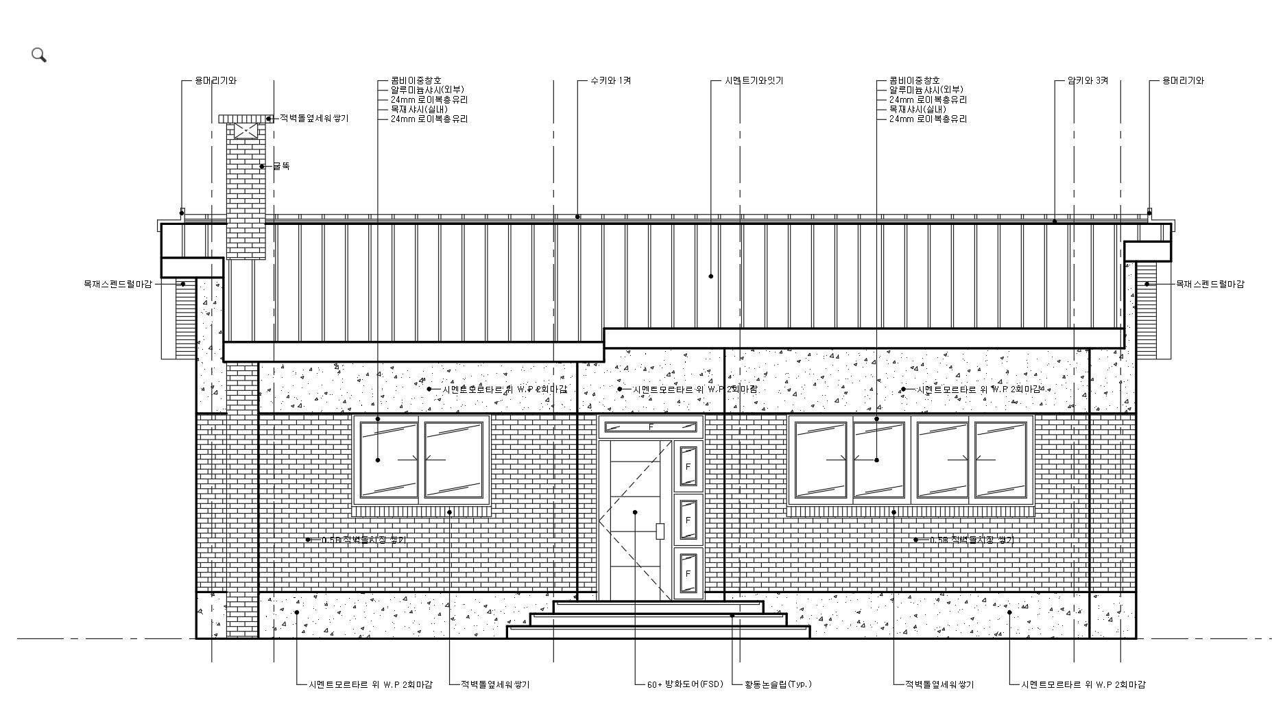
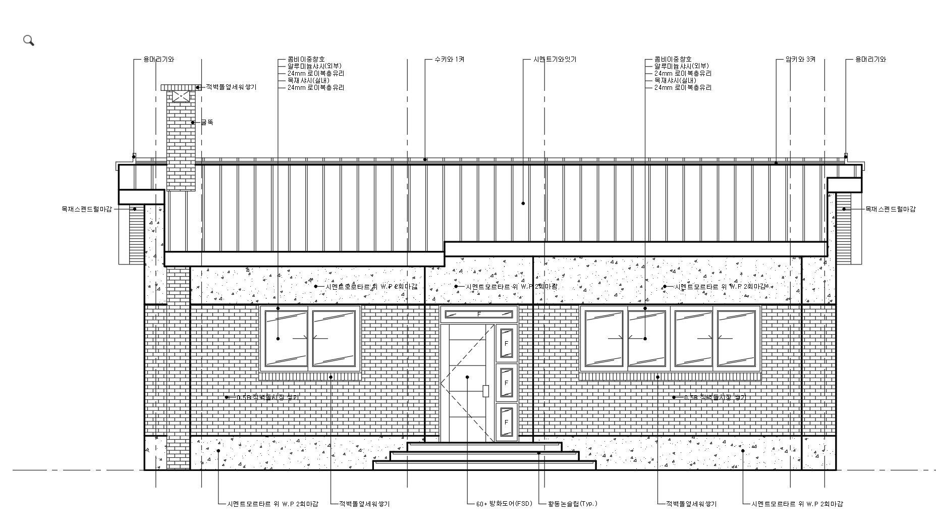
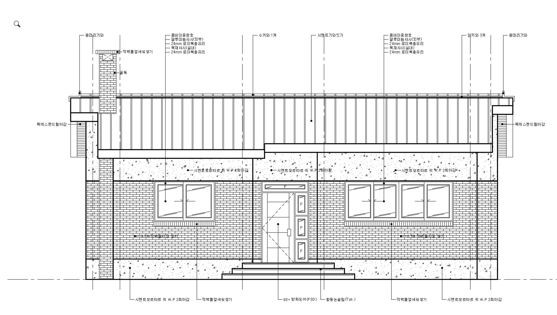
25 26전산응용건축제도기능사/19_단면도_입면도 재료기입의 이해

25_19_단면도_입면도_재료 기입_의 이해

by 메이슨류 2025. 7. 5.

25_19_단면도_입면도_재료 기입의 이해

 

단면도 재료기입 동영상 강의

 

입면도 재료기입 동영상 강의

 

강의 자료실에 파일 있어요