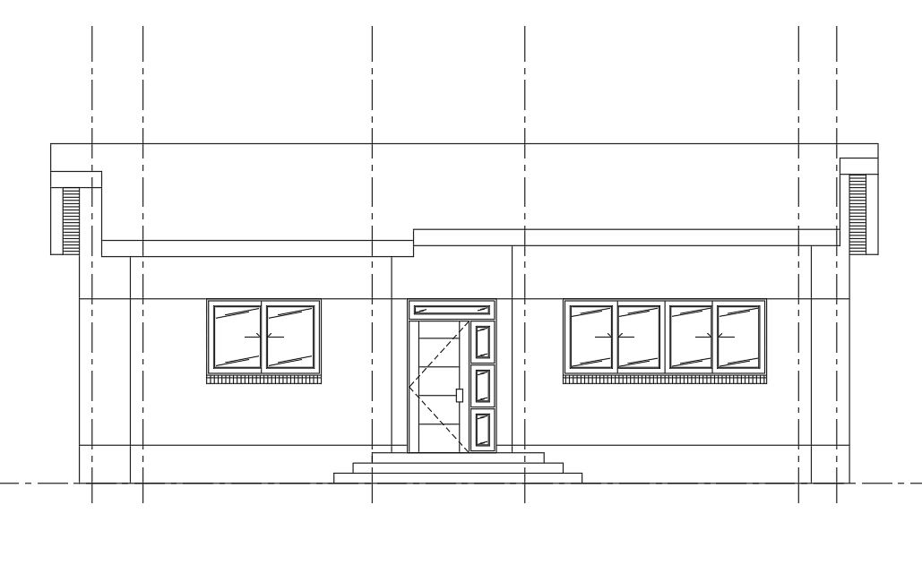
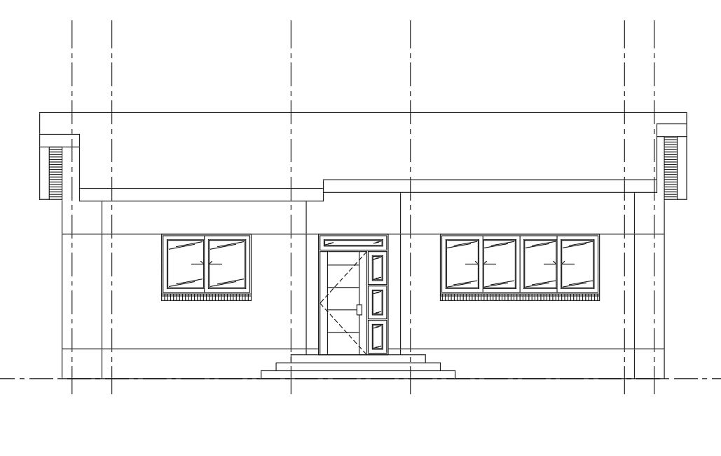
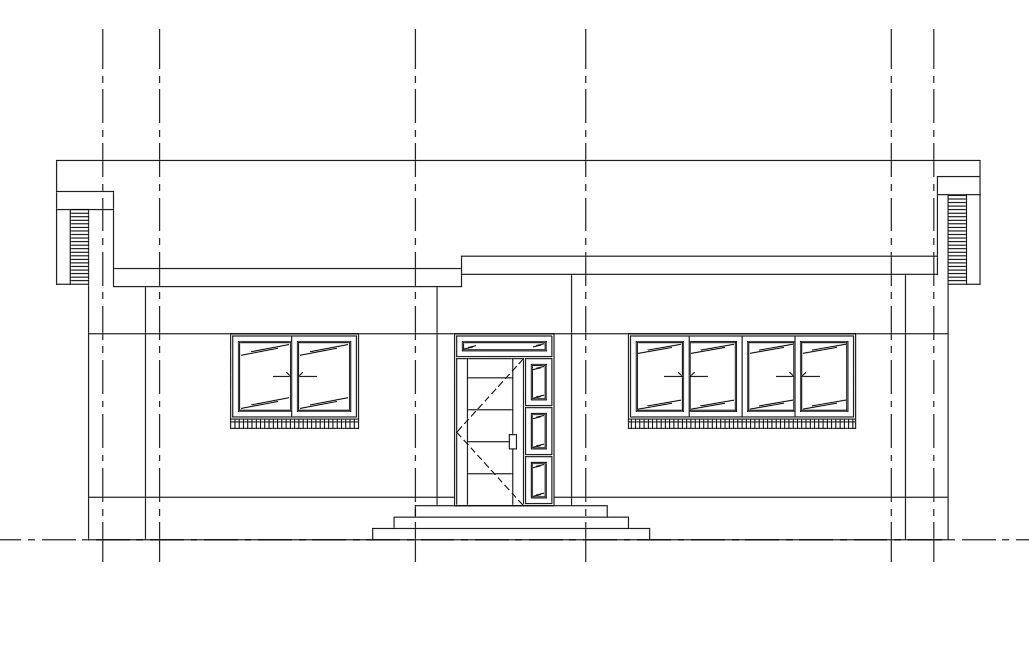
25 26전산응용건축제도기능사/14_입면도 창호 작성의 이해 25_14_입면도 창호 작성의 이해 by 메이슨류 2025. 7. 5. 25_14_입면도 창호 작성의 이해 공유하기 게시글 관리 워크앤스튜디오